Lacaton Vassal_Boulevard du Bois-le-Prêtre 5-9

Architecte
Lacaton & Vassal, Frédéric Druot

Lieu
Paris 17 Boulevard du bois le prêtre
Année(s) du projet
2006 - 2008-2011

Données générales

Architecte

Lacaton & Vassal, Frédéric Druot

Site internet de l'architecte

https://www.lacatonvassal.com

Maître d'oeuvre

Paris Habitat

Lieu du projet

Paris 17 Boulevard du bois le prêtre

Année du projet

2006

Année de livraison du projet

2008-2011

Ensemble

Forme Urbaine

Plot

Grandeur de l'ensemble (m2) - SP selon SIA 416

12460

Nombre de logements

100

Surface de la parcelle

2675*

CUS

4,66*

COS

0,36*

Immeuble

Nombre de niveaux

> 10

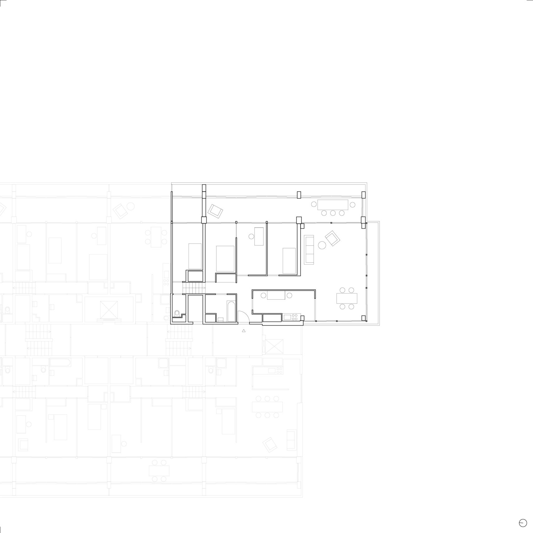
Diversité d’appartement

1 pièce, 2 pièces, 3 pièces, 4 pièces, 5 pièces, 6 pièces

Forme de distribution

rue intérieure

Profondeur morphologique representative (ml)

26

Typologie

Profondeur typologique max (ml)

10*

Figure typologique représentative

Plan cellulaire

Organisation en coupe

Simplex

Orientation des/du logement(s)

mono-orienté, angle, traversant, trois

Infos

Structure - matériau

béton, métal

Structure - type

hybride

Facade - type

hybride

Facade - matériau

métal, autre
Etudiant-e: Morel Hugo
Lacaton Vassal_Boulevard du Bois-le-Prêtre 5-9
Lacaton Vassal_Boulevard du Bois-le-Prêtre 5-9
Lacaton Vassal_Boulevard du Bois-le-Prêtre 5-9
Lacaton Vassal_Boulevard du Bois-le-Prêtre 5-9
Lacaton Vassal_Boulevard du Bois-le-Prêtre 5-9
Lacaton Vassal_Boulevard du Bois-le-Prêtre 5-9
Lacaton Vassal_Boulevard du Bois-le-Prêtre 5-9
Lacaton Vassal_Boulevard du Bois-le-Prêtre 5-9
Lacaton Vassal_Boulevard du Bois-le-Prêtre 5-9
Lacaton Vassal_Boulevard du Bois-le-Prêtre 5-9
Lacaton Vassal_Boulevard du Bois-le-Prêtre 5-9
Résumé de la politique de confidentialité

atlasdulogement.ch s'engage à protéger votre vie privée. Contactez-nous si vous avez des questions ou des problèmes concernant l'utilisation de vos données personnelles et nous serons heureux de vous aider.
En utilisant ce site et / ou nos services, vous acceptez le traitement de vos données personnelles tel que décrit dans notre politique de confidentialité.

Consulter notre politique de confidentialité